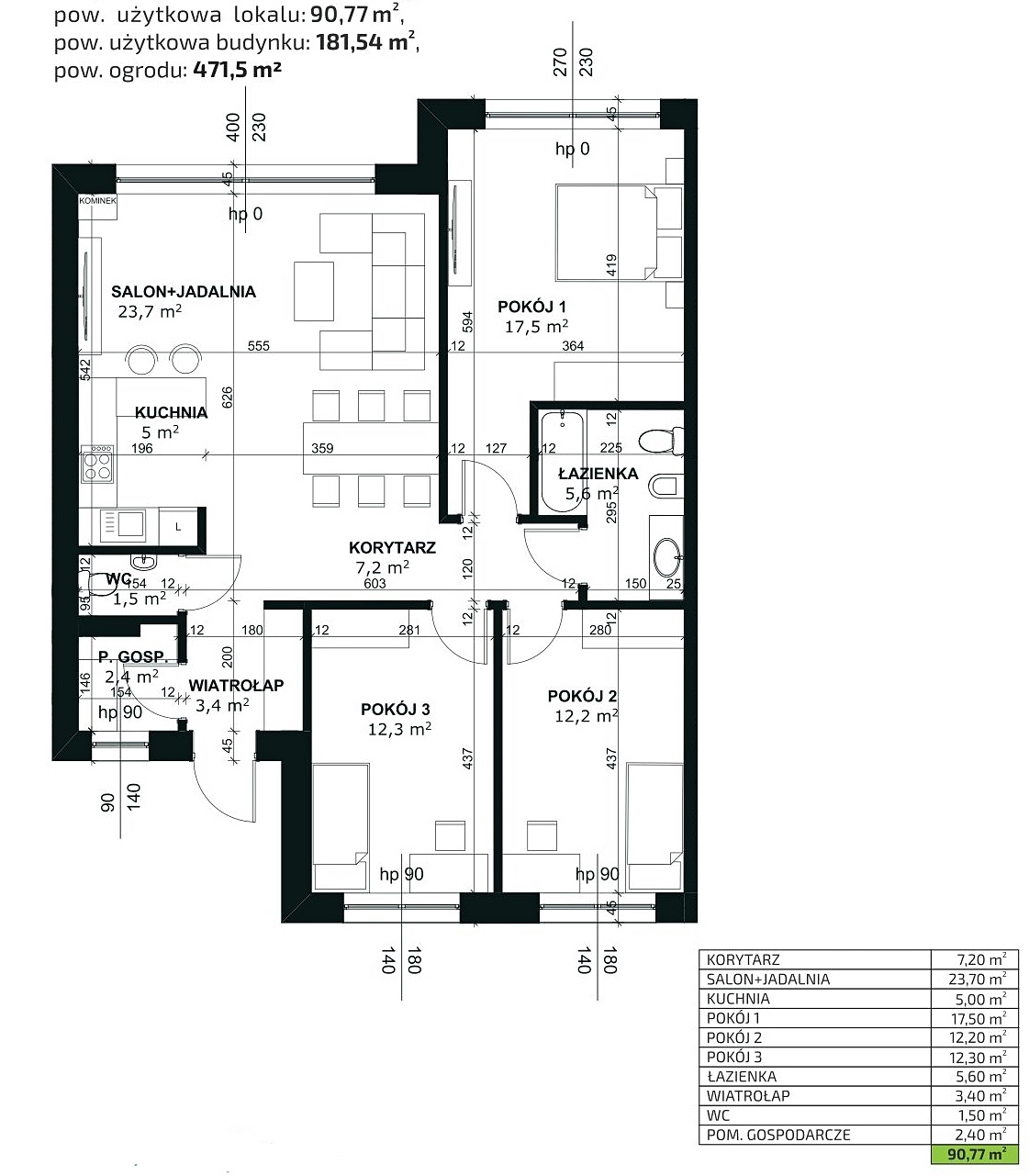
Na sprzedaż elegancki, pięknie wykończony segment bliźniaka, w dobrej lokalizacji, w malowniczej miejscowości Sierosław - zaledwie 15 km od centrum Poznania. Dom o powierzchni 90,77 m2 i przynależna działka o powierzchni 471,5 m2. Na przestrzeń mieszkalną składa się obszerny salon (23,7) w wyjściem na taras połączony z otwartą kuchnią (5 m2), duża sypialnia (17,5 m2) z szafą garderobianą na wymiar i wyjściem na taras, 2 nieco mniejsze pokoje (12,3 m2 i 12,2 m2), łazienka (5,6 m2) z wanną, pomieszczenia gospodarcze (2,4 m2), osobna toaleta (1,5 m2), hall (7,2 m2) i wiatrołap (3,4 m2). Przed budynkiem znajduje się podjazd z miejscem na 3 samochody a na działce blaszany domek ogrodowy.
Budynek powstał w 2022 roku i jest w bardzo dobrym stanie technicznym. Wnętrza prezentują się znakomicie. Są jasne, przestronne. Do wykończenia użyto dobrych, starannie wybranych materiałów. W pokojach i kuchni powstały użyteczne zabudowy na wymiar. Całość jest bardzo spójna i powinna trafić w większość gustów. W domu zainstalowane jest wszędzie ogrzewanie podłogowe. Ciepło generuje nowoczesny piec gazowy dwu-funkcyjny. We wszystkich pomieszczeniach są 3-szybowe okna PCV z elektrycznymi roletami i moskitierami. Działa system alarmowy i monitoringu. Jest internet światłowodowy.
Dom posadowiony jest na zagospodarowanej działce, z pięknie utrzymanym trawnikiem, własnym systemem nawadniania, domkiem narzędziowym i sporym tarasem.
Wspaniała okolica z szybkim dojazdem do Poznania (około 15-20 minut), Zachodniej obwodnicy, Autostrady A2. W pobliżu znajdziemy dużo terenów zielonych, jeziora, sklepy, punkty usługowe, przystanek komunikacji miejskiej, szkoły i przedszkola.
Przedmiotowy dom idealnie sprawdzi się dla rodziny 3-4 osobowej. Budynek znajduje się w kameralnej enklawie domków, z sielankową i dobrą atmosferą sąsiedzką.
Cena sprzedaży: 950 000
Zapraszam do obejrzenia nieruchomości na żywo.
Przedstawione dane mają charakter informacyjny i nie stanowią oferty w rozumieniu przepisów K.C. oraz innych właściwych przepisów prawnych. Biuro LASKOWSKI NIERUCHOMOŚCI zapewnia bezpieczeństwo transakcji oraz profesjonalną obsługę, aż do przekazania nieruchomości nowym właścicielom. Współpracujemy ze sprawdzonymi doradcami finansowymi, notariuszami i architektami.
Na sprzedaż elegancki, pięknie wykończony segment bliźniaka, w dobrej lokalizacji, w malowniczej miejscowości Sierosław - zaledwie 15 km od centrum Poznania. Dom o powierzchni 90,77 m2 i przynależna działka o powierzchni 471,5 m2. Na przestrzeń mieszkalną składa się obszerny salon (23,7) w wyjściem na taras połączony z otwartą kuchnią (5...
| Id nieruchomości: | 295/4159/ODS |
| Rok budowy: | 2022 |
| Dostępne od: | 15.04.2025 |
| Powierzchnia użytkowa: | 90.77 |
| Powierzchnia działki: | 471.5 |
| Powierzchnia ogrodu: | 471.5 |
| Powierzchnie tarasów: | 20 |
| Materiał: | Cegła |
| Dach: | Dachówka betonowa |
| Rodzaj ogrzewania: | CO własne, Podłogowe, Gaz |
| Gaz: | Tak |
| Ujęcie wody: | Miejska |
| Rodzaj kanalizacji: | CO miejskie |
| Ciepła woda: | Piec gazowy |
| Garaż (liczba miejsc): | 2 |
| Komunikacja: | |
| Dostępne w okolicy: | |
| Alarm: | Tak |
| Domofon: | Nie |
| Monitoring: | Tak |
| Kształt działki: | Prostokąt |
| Ukształtowanie działki: | Płaska |
| Ogrodzenie: | Siatka |
| Rynek: | Wtórny |
| Cena: | 950000 PLN |
| Powierzchnia: | 90.77 |
| Cena za m2: | 10466.01 PLN |
| Liczba pokoi: | 4 |
| Liczba pięter: | 1 |
| Stan budynku: | Idealny |
| Siła: | Tak |
| Stan nieruchomości: | Idealny |
| Typ okien: | Z roletami, PCV |
| Drzwi wejściowe: | Przeciwwłamaniowe |
| Przystosowane dla niepełnosprawnych: | Nie |
| Internet: | Tak |
| Telewizja kablowa: | Nie |
| Telefon: | Nie |
| Klimatyzacja: | Nie |
| Kominkowe: | Nie |
| Jacuzzi: | Nie |
| Sauna: | Nie |
| Powierzchnie pokoi: | 23,7 + 17,5 + 12.3 + 12,2 |
| Powierzchnia salonu: | 23.7 |
| Podłogi w pomieszczeniach: | Płytki |
| Typ kuchni: | Otwarta |
| Wyposażenie kuchni: | Meble, Piec elektryczny, Zmywarka, Lodówka, Meble w zabudowie kuchennej, Zamrażarka, Kuchenka elektryczna, Zlewozmywak |
| Powierzchnia kuchni: | 5 |
| Liczba łazienek: | 1 |
| Wyposażenie łazienek: | Wanna, WC, Umywalka |
| Liczba oddzielnych toalet: | 1 |
| Powierzchnie toalet: | 1,5 |
| Typ balkonów: | |
| Liczba tarasów: | 1 |
| Piwnica: | Nie |
| Ogród: | Tak |
| Garaż: | Tak |
| Widok na: | |
| Droga dojazdowa: | Utwardzona |
| Poddasze/strych: | Nie |
| Prąd: | Tak |
| Wentylacja wymuszona: | Tak |
| Powierzchnia działki - jednostka: | m2 |
| Basen: | Nie |
| Zamiana: | Nie |
| Typ domu: | Bliźniak |
| Działka narożna: | Tak |
| Szerokość działki (mb.): | 18 |
| Długość działki (mb.): | 26 |
| Aranżacja działki: | Trawnik, Altanka |
| Solar: | Nie |
| Pompa ciepła: | Nie |
| Rekuperator: | Nie |
| Wpis do Rejestru Zabytków: | Nie |
| Okna w piwnicy: | Nie |
| Pomieszczenie gospodarcze: | Tak |
| Ogród zimowy: | Nie |
| Stan prawny: | Własność |
| Udział w prawie: | Tak |
| Stan prawny gruntu: | Własność |
| Rodzaj umowy: | Otwarta |
| Oferta bezpośrednia: | Nie |
| SWO ID: | 435395 |
Zapraszam serdecznie do kontaktu. Mój priorytet to dostarczanie usług na najwyższym poziomie. Jesteśmy gotowi podjąć wszelkie wysiłki aby zapewnić satysfakcję i spełnić Państwa oczekiwania.
